Your Community Centre

0
1415
Oxford Community Centre "Skeleton"

[Drone footage of the OSC Construction here!]

Last week, the Oxford and Area Community Centre (OCC) Committee held a public information session at the Oxford Fire Hall.

David Hoffman spoke on behalf of the committee, saying the objectives were (1) communication, to provide an update to the community; and (2) to encourage public participation as the committee prepares to organize the roles and responsibilities surrounding the operation of this $24.5-million facility โ€” a dollar figure Hoffman called “staggering.”

Throughout Hoffman’s presentation, he stressed the importance of community involvement in the centre’s operation as an important factor for its long-term sustainability. Hoffman also repeatedly stressed that this facility, while located in the Town of Oxford, is intended to serve a much wider “Oxford and Area”:

…this is a community centre owned by the community.

It’s not owned by the town.

It’s not owned by the province.

It’s owned by the community.

So we need your help.

David Hoffman, Oxford Community Centre Committee, 25 March 2025

At the Tuesday evening meeting, about 25 people signed up to serve as volunteers in some capacity, immediately and once the building opens. The Ribbon-cutting should happen in Spring, 2026. An anticipated December opening date was pushed back to a delay in sourcing some materials for the infrastructure. In the meantime, bodies are needed to help pursue fundraising activities and to plan out operations requirements for staffing and volunteer management.

The Oxford and Area Community Centre Logo

Follow the Money

While the Oxford Community Centre project has received support from the Federal, Provincial, and Municipal governments, plus a sizeable donation from the River Philip Foundation, among others, the funding stands at just over $21-million, leaving about a $3-million shortfall. Hoffman says fundraising efforts are continuing, and they anticipate other corporate donations to make up the difference. The facility will be up for grabs in “naming rights,” both for the official name of the Centre as a whole, and for individual rooms within the building.

Questions from the Floor

Questions from the audience at Tuesday’s meeting focused on what might happen should not enough money be raised (Hoffman: if necessary, we’ll go to a bank for a loan, but we’re confident that we’ll have the commitments in time); How will the building be heated (Hoffman: Electricity. We have a solar plant to offset electricity use and the building is being constructed to net-zero standards, and should be relatively inexpensive to operate); and on the matter of messaging, some were concerned that the facility would be seen as Oxford-only. Hoffman explained that every effort was being made to promote this as the “Oxford and Area” Community Centre. He said the committee recently met with the Cumberland County Municipal Council, and while no funds were committed (“they have budget deliberations in front of them… they understand the need”), it is clear that everyone sees this Centre as serving a much wider area than simply the Town of Oxford.

History

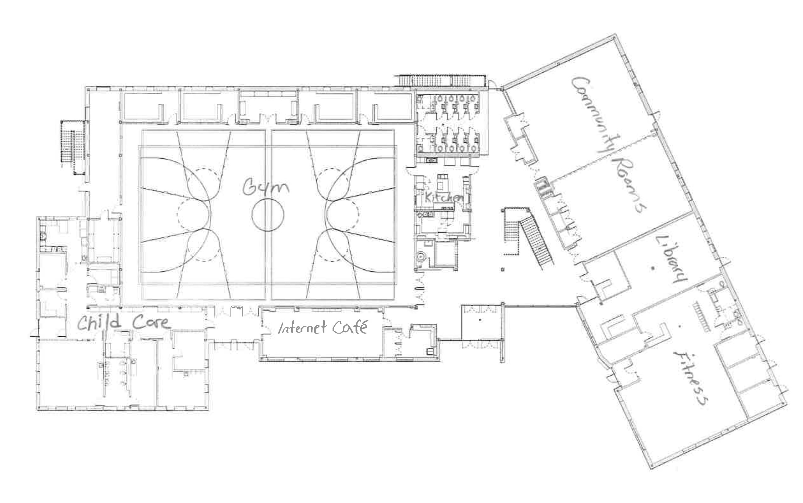
Hoffman noted that with the loss of the former Lion’s Community Centre to a sinkhole back in 2018, the town lost a gathering place, for weddings and other events. In the year since, with the growth of Oxford’s population, the opportunities for integration have been lacking โ€” there is nowhere for people to come together and socialize. Hoffman also mentioned challenges facing organizers of local recreational activities with access to the OREC gymnasium, something the new Community Centre with its regulation gym will add, increasing local capacity for sports and other events.

What we’re getting

Presenting an updated schematic of the Centre, Hoffman noted two paying tenants will be the YMCA Childcare facility, located on the west wing of the building, and the Oxford branch Library, located off the lobby area on the east wing. The eastward tip of the building will be occupied by the fitness centre, moved from the current downtown location on Rideau St. and with updated equipment. The fitness centre is being designed for access via it’s own dedicated entrance.

A large kitchen, a second-storey walking track around the gymnasium, and multi-purpose rooms for community event bookings round out the rest of the space available. An area alongside the gym, proposed as an “internet cafรฉ” area, might be outsourced to a community group or business to operate. The facility will have a capacity of up to 600 people โ€” roughly half the population of Oxford.

Over the past couple of years, the Committee conducted public surveys to see what folks wanted to see in their new Community Centre. Hoffman says the swimming pool was mentioned frequently, though it wasn’t among the top three features mentioned. He says the cost of building and maintaining a pool were simply beyond what was possible for this facility.

YOU and Your Community Centre

A building of this magnitude represents enormous potential benefits for the Town of Oxford and its residents. Anyone wishing to be involved in some way โ€” fundraising, operations, volunteering, etc. โ€” should contact the Oxford and Area Community Centre Committee.


Upcoming fundraisers for the Oxford and Area Community Centre

April 26, 2025: Oxford Capitol Theatre: Comedy Fundraiser

April 30, 2025 (draw): NSCC Raffle for the OSC

Related

โ€œThis is huge for Oxford, itโ€™s huge for Cumberland Countyโ€ โ€” 9 October 2024

Thanks to Dave Spencer for providing the aerial footage of the Oxford Community Centre construction site!